
Flachdachhaus mit offenem Grundriss – 210 m² für die ganze Familie
Wohnfläche
Grundfläche
Festpreis

Familienunternehmen, 4. Generation
Auf die Konstruktion
Bis 28.000 € Förderung
Patentierte Klimawand
Ihr Flachdachhaus auf einen Blick
Wohnfläche nach DIN
Grundfläche nach DIN
Außenmaße inkl. Garage
2 Vollgeschosse, keine Schrägen
Garage mit Direktzugang
Holzständer + atmo-tec®
Offener Grundriss auf zwei Vollgeschossen
Im Erdgeschoss dominiert ein offener Wohn-Ess-Kochbereich, der das Herzstück des Familienlebens bildet. Die Küche wird dezent vom Essbereich getrennt – offen genug für Kommunikation, strukturiert genug für Ordnung. Bodentiefe Fenster zur Gartenseite fluten den Raum mit Tageslicht und schaffen fließende Übergänge zur Terrasse. Über die integrierte Garage gelangen Sie trockenen Fußes ins Haus.
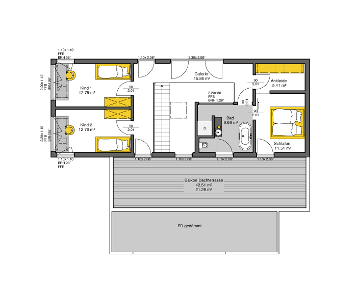
Das Obergeschoss bietet jedem Familienmitglied seinen eigenen Rückzugsort – auf voller Raumhöhe ohne Dachschrägen. Die Eltern freuen sich über ein großzügiges Schlafzimmer mit angeschlossener Ankleide. Für die Kinder stehen zwei Zimmer mit jeweils ca. 15 m² bereit. Dank Flachdach-Bauweise geht kein Quadratmeter verloren.
So ist das Flachdachhaus aufgeteilt
💡 Dieser Grundriss ist ein Inspirationsentwurf. Über Büdenbender individual+ können alle Räume frei angepasst werden.

Flachdach trifft wohngesunden Holzbau
Die patentierte Büdenbender-Klimawand kombiniert Massivfaserplatten mit diffusionsoffener Dämmung. Im Winter kuschelig warm, im Sommer angenehm kühl – ganz ohne chemische Zusätze. Mehr erfahren →
Alle Büdenbender-Häuser erfüllen das Qualitätssiegel Nachhaltiges Gebäude (QNG). Nutzen Sie KfW-Fördermittel und sparen Sie bis zu 28.000 €. Förderung prüfen →
Kein Quadratmeter geht durch Dachschrägen verloren. Die Dachfläche eignet sich für Begrünung, Dachterrasse oder Photovoltaik. Die kompakte Kubusform sorgt zudem für niedrige Energiekosten.
Büdenbender-Entwürfe im Vergleich
Häufige Fragen zu diesem Flachdachhaus
Was kostet ein modernes Flachdachhaus als Fertighaus?
Die Kosten hängen von Größe, Ausstattung und Grundstück ab. Büdenbender bietet eine 22-monatige Festpreisgarantie: Der vereinbarte Preis ändert sich nicht. Als Orientierung liegen moderne Flachdachhäuser bei ca. 2.700 €/m² in Standardausstattung. Für ein individuelles Angebot kontaktieren Sie einen Büdenbender-Fachberater.
Wie groß muss mein Grundstück für ein Flachdachhaus mit Garage sein?
Dieses Flachdachhaus hat Außenmaße von 17,7 × 12,5 m (inkl. Garage). Mit gesetzlichen Abstandsflächen (i.d.R. 3 m) benötigen Sie mindestens ca. 500–600 m², je nach Bebauungsplan.
Kann ich den Grundriss dieses Flachdachhauses verändern?
Ja. Büdenbender plant jedes Haus individuell (Programm „individual+"). Der gezeigte Grundriss ist ein Inspirationsentwurf – Raumgrößen, Raumaufteilung und Fassadengestaltung können vollständig angepasst werden.
Hat ein Flachdachhaus Vorteile gegenüber einem Satteldachhaus?
Ja – vor allem im Obergeschoss: Bei 2 Vollgeschossen mit Flachdach gibt es keine Dachschrägen, jeder Quadratmeter ist voll nutzbar. Das Flachdach eignet sich für Dachbegrünung, Dachterrassen und Photovoltaik. Die Baukosten können geringer ausfallen, da kein Dachstuhl nötig ist.
Kann ich den Grundriss dieses Flachdachhauses verändern?
Ja. Büdenbender plant jedes Haus individuell (Programm „individual+"). Der gezeigte Grundriss ist ein Inspirationsentwurf – Raumgrößen, Raumaufteilung und Fassadengestaltung können vollständig angepasst werden.
Kann ich den Grundriss dieses Flachdachhauses verändern?
Ja. Büdenbender plant jedes Haus individuell (Programm „individual+"). Der gezeigte Grundriss ist ein Inspirationsentwurf – Raumgrößen, Raumaufteilung und Fassadengestaltung können vollständig angepasst werden.









