Lordanos Außenansicht
Einfamilienhaus

Satteldachhaus mit offenem Grundriss für die ganze Familie

Architektenhaus mit Satteldach.
82

Wohnfläche
2
Vollgeschosse
87

Grundfläche
Lordanos Außenansicht
Seit 1946

Familienunternehmen, 4. Generation

50 Jahre Garantie

Auf die Konstruktion

KfW-förderfähig

Bis 28.000 € Förderung

atmo-tec®

Patentierte Klimawand

Daten & Fakten

Ihr Flachdachhaus auf einen Blick

Alle technischen Details zu diesem individuell planbaren Fertighaus mit Flachdach und integrierter Garage.
82

Wohnfläche nach DIN

87

Grundfläche nach DIN

Satteldach

2 Vollgeschosse, keine Schrägen

Wohngesund bauen mit Büdenbender

Garage mit Direktzugang

bhb

Holzständer + atmo-tec®

Galerie

Einblicke in Ihr Flachdachhaus

Entdecken Sie Innen- und Außenansichten dieses individuell planbaren Hauses. Die Bilder zeigen beispielhafte Wohnsituationen und geben Inspiration für Ihr eigenes Büdenbender Traumhaus.
Raumkonzept

Offener Grundriss auf zwei Vollgeschossen

Gemeinsames Familienleben und persönliche Rückzugsorte – auf 180 m² ohne einen Quadratmeter an Dachschrägen zu verlieren.
 Smarter Einstieg
Erdgeschoss

Im Erdgeschoss dominiert ein offener Wohn-Ess-Kochbereich, der das Herzstück des Familienlebens bildet. Die Küche wird dezent vom Essbereich getrennt – offen genug für Kommunikation, strukturiert genug für Ordnung. Bodentiefe Fenster zur Gartenseite fluten den Raum mit Tageslicht und schaffen fließende Übergänge zur Terrasse. Über die integrierte Garage gelangen Sie trockenen Fußes ins Haus.

Offener Wohn-Ess-Kochbereich
Bodentiefe Fenster
Gäste-WC
Diele
Technikraum
Garagenzugang
Privatsphäre
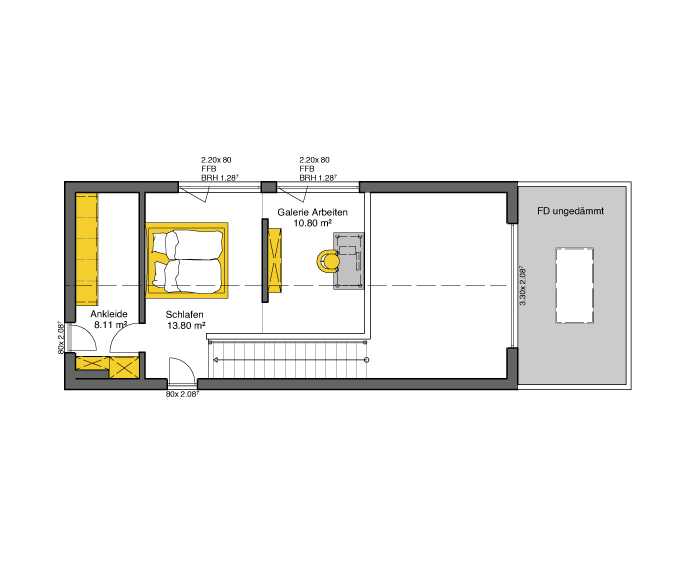
Obergeschoss

Das Obergeschoss bietet jedem Familienmitglied seinen eigenen Rückzugsort – auf voller Raumhöhe ohne Dachschrägen. Die Eltern freuen sich über ein großzügiges Schlafzimmer mit angeschlossener Ankleide. Für die Kinder stehen zwei Zimmer mit jeweils ca. 15 m² bereit. Dank Flachdach-Bauweise geht kein Quadratmeter verloren.

Elternschlafzimmer
Ankleide
2 Kinderzimmer à ~15 m²
Familienbad
Keine Dachschrägen
Grundrisse

So ist das Flachdachhaus aufgeteilt

Inspiration für Ihre Planung – jeder Grundriss ist individuell anpassbar.
https://cdn.prod.website-files.com/6989628e6400b1ebc392345d/6990a72584ca75d00d537f51_csm_bbh_haueser_enzo_20200107_banner_c57e4867be.jpg

💡 Dieser Grundriss ist ein Inspirationsentwurf. Über Büdenbender individual+ können alle Räume frei angepasst werden.

https://cdn.prod.website-files.com/6989628e6400b1ebc392345d/6990a72584ca75d00d537f51_csm_bbh_haueser_enzo_20200107_banner_c57e4867be.jpg
Bauweise & Energie

Flachdach trifft wohngesunden Holzbau

Patentierte Technologie, zertifizierte Energieeffizienz und Materialien, die Generationen überdauern.
Klimawand atmo-tec®

Die patentierte Büdenbender-Klimawand kombiniert Massivfaserplatten mit diffusionsoffener Dämmung. Im Winter kuschelig warm, im Sommer angenehm kühl – ganz ohne chemische Zusätze. Mehr erfahren →

Feuerwiderstandsklasse F120
KfW-förderfähig

Alle Büdenbender-Häuser erfüllen das Qualitätssiegel Nachhaltiges Gebäude (QNG). Nutzen Sie KfW-Fördermittel und sparen Sie bis zu 28.000 €. Förderung prüfen →

Bis zu 28.000 € KfW-Förderung
Warum Flachdach?

Kein Quadratmeter geht durch Dachschrägen verloren. Die Dachfläche eignet sich für Begrünung, Dachterrasse oder Photovoltaik. Die kompakte Kubusform sorgt zudem für niedrige Energiekosten.

100 % nutzbare Fläche im OG

Ihr Flachdachhaus individuell planen

Kostenlose Beratung vom Büdenbender-Fachberater – persönlich vor Ort oder per Video.

Beratung anfragen
Musterhaus besuchen
Vergleich

Büdenbender-Entwürfe im Vergleich

Welches Haus passt zu Ihnen? Vergleichen Sie unsere beliebtesten Architektenhäuser.

Dieses Flachdachhaus

Weltino

Benicio

Dachform

Flachdach
Satteldach
Pultdach

Wohnfläche

180 m²
165 m²
172 m²

Vollgeschosse

2
1.5
2

Garage integriert

optional
optional

Ohne Dachschrägen

teilweise

Offener Grundriss

QNG-förderfähig

Häufige Fragen

Häufige Fragen zu diesem Flachdachhaus

Kosten, Bauzeit, Förderung und individuelle Planung – hier finden Sie Antworten.

Was kostet ein modernes Flachdachhaus als Fertighaus?

Die Kosten hängen von Größe, Ausstattung und Grundstück ab. Büdenbender bietet eine 22-monatige Festpreisgarantie: Der vereinbarte Preis ändert sich nicht. Als Orientierung liegen moderne Flachdachhäuser bei ca. 2.700 €/m² in Standardausstattung. Für ein individuelles Angebot kontaktieren Sie einen Büdenbender-Fachberater.

Wie groß muss mein Grundstück für ein Flachdachhaus mit Garage sein?

Dieses Flachdachhaus hat Außenmaße von 17,7 × 12,5 m (inkl. Garage). Mit gesetzlichen Abstandsflächen (i.d.R. 3 m) benötigen Sie mindestens ca. 500–600 m², je nach Bebauungsplan.

Kann ich den Grundriss dieses Flachdachhauses verändern?

Ja. Büdenbender plant jedes Haus individuell (Programm „individual+"). Der gezeigte Grundriss ist ein Inspirationsentwurf – Raumgrößen, Raumaufteilung und Fassadengestaltung können vollständig angepasst werden.

Hat ein Flachdachhaus Vorteile gegenüber einem Satteldachhaus?

Ja – vor allem im Obergeschoss: Bei 2 Vollgeschossen mit Flachdach gibt es keine Dachschrägen, jeder Quadratmeter ist voll nutzbar. Das Flachdach eignet sich für Dachbegrünung, Dachterrassen und Photovoltaik. Die Baukosten können geringer ausfallen, da kein Dachstuhl nötig ist.

Kann ich den Grundriss dieses Flachdachhauses verändern?

Ja. Büdenbender plant jedes Haus individuell (Programm „individual+"). Der gezeigte Grundriss ist ein Inspirationsentwurf – Raumgrößen, Raumaufteilung und Fassadengestaltung können vollständig angepasst werden.

Kann ich den Grundriss dieses Flachdachhauses verändern?

Ja. Büdenbender plant jedes Haus individuell (Programm „individual+"). Der gezeigte Grundriss ist ein Inspirationsentwurf – Raumgrößen, Raumaufteilung und Fassadengestaltung können vollständig angepasst werden.

Grundrisse

So ist das Flachdachhaus aufgeteilt

Inspiration für Ihre Planung – jeder Grundriss ist individuell anpassbar.
Alle Flachdachhäuser

Weitere Flachdachhaus-Entwürfe – modern, energieeffizient und individuell planbar.

Satteldachhäuser als Alternative

Klassische Architektur mit bewährter Konstruktion. Vergleichen Sie die Vorteile.

Klimawand atmo-tec®

Alles über die patentierte Klimawand: diffusionsoffen, wohngesund, F120.

Individuell planen mit individual+

Jeder Grundriss ist Inspiration. So gestalten Sie Ihr Haus frei nach Ihren Wünschen.

KfW-Förderung & Effizienzhäuser

Bis zu 28.000 € KfW-Förderung. Alle Infos zu QNG und Energiestandards.

Fachberater in Ihrer Nähe

Persönliche Beratung vor Ort oder online. Finden Sie Ihren Büdenbender-Experten.