
Kundenhaus Schliengen-Obereggenen

Familienunternehmen, 4. Generation
Auf die Konstruktion
Bis 28.000 € Förderung
Patentierte Klimawand
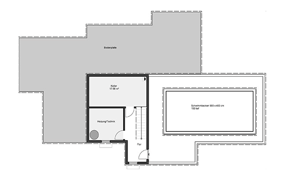
Grundriss Ihres Flachdachhauses – offen, flexibel, individuell planbar
Flachdachhaus Galerie – Innen- und Außenansichten zum Inspirieren
Häufige Fragen zu diesem Flachdachhaus
Was kostet ein modernes Flachdachhaus als Fertighaus?
Die Kosten hängen von Größe, Ausstattung und Grundstück ab. Büdenbender bietet eine 22-monatige Festpreisgarantie: Der vereinbarte Preis ändert sich nicht. Als Orientierung liegen moderne Flachdachhäuser bei ca. 2.700 €/m² in Standardausstattung. Für ein individuelles Angebot kontaktieren Sie einen Büdenbender-Fachberater.
Wie groĂź muss mein GrundstĂĽck fĂĽr ein Flachdachhaus mit Garage sein?
Dieses Flachdachhaus hat Außenmaße von 17,7 × 12,5 m (inkl. Garage). Mit gesetzlichen Abstandsflächen (i.d.R. 3 m) benötigen Sie mindestens ca. 500–600 m², je nach Bebauungsplan.
Kann ich den Grundriss dieses Flachdachhauses verändern?
Ja. Büdenbender plant jedes Haus individuell (Programm „individual+"). Der gezeigte Grundriss ist ein Inspirationsentwurf – Raumgrößen, Raumaufteilung und Fassadengestaltung können vollständig angepasst werden.
Hat ein Flachdachhaus Vorteile gegenĂĽber einem Satteldachhaus?
Ja – vor allem im Obergeschoss: Bei 2 Vollgeschossen mit Flachdach gibt es keine Dachschrägen, jeder Quadratmeter ist voll nutzbar. Das Flachdach eignet sich für Dachbegrünung, Dachterrassen und Photovoltaik. Die Baukosten können geringer ausfallen, da kein Dachstuhl nötig ist.
Kann ich den Grundriss dieses Flachdachhauses verändern?
Ja. Büdenbender plant jedes Haus individuell (Programm „individual+"). Der gezeigte Grundriss ist ein Inspirationsentwurf – Raumgrößen, Raumaufteilung und Fassadengestaltung können vollständig angepasst werden.
Kann ich den Grundriss dieses Flachdachhauses verändern?
Ja. Büdenbender plant jedes Haus individuell (Programm „individual+"). Der gezeigte Grundriss ist ein Inspirationsentwurf – Raumgrößen, Raumaufteilung und Fassadengestaltung können vollständig angepasst werden.




